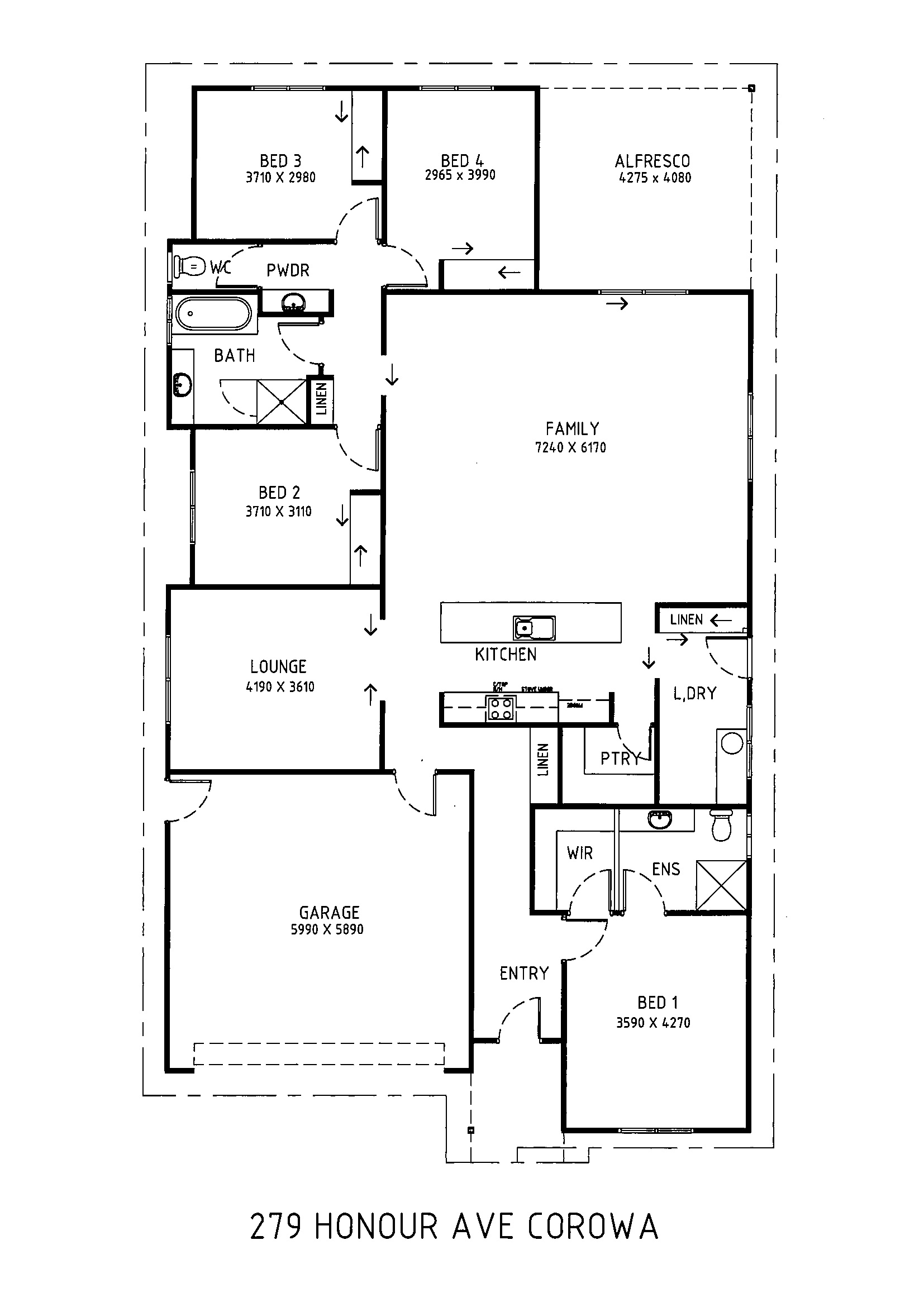
OPEN PLAN CONTEMPORARY WITH HAMPTON STYLE APPEAL

This newly constructed residence has all the modern day living requirements. Stylishly crafted, it consists 4 bedrooms, ensuite and walk in robe to the master. Seperate theatre room, huge living/ family/ dining area combined for the family get together. 

Stunning kitchen with large walk in pantry featuring white, grey and black tones. Sliding doors from the family area to covered alfresco. 

Surrounding fences have been made higher for privacy. Duel access to double garage and back yard (Ideal for caravan, boat etc). A two or three minute walk from the shops, opposite the Primary School.

4 2 2
Address 279 Honour Ave, Corowa
Price SOLD
Property Type Residential
Property ID 938
Category House

Agent Details

Emma Webb photo

Emma Webb

0488362352
View Profile