Sold Off Market !!!

196 Church Street Corowa has been sold off market through our buyers database. Whether you are buying or selling, contact our Sales agents today on 02 6033 1001.

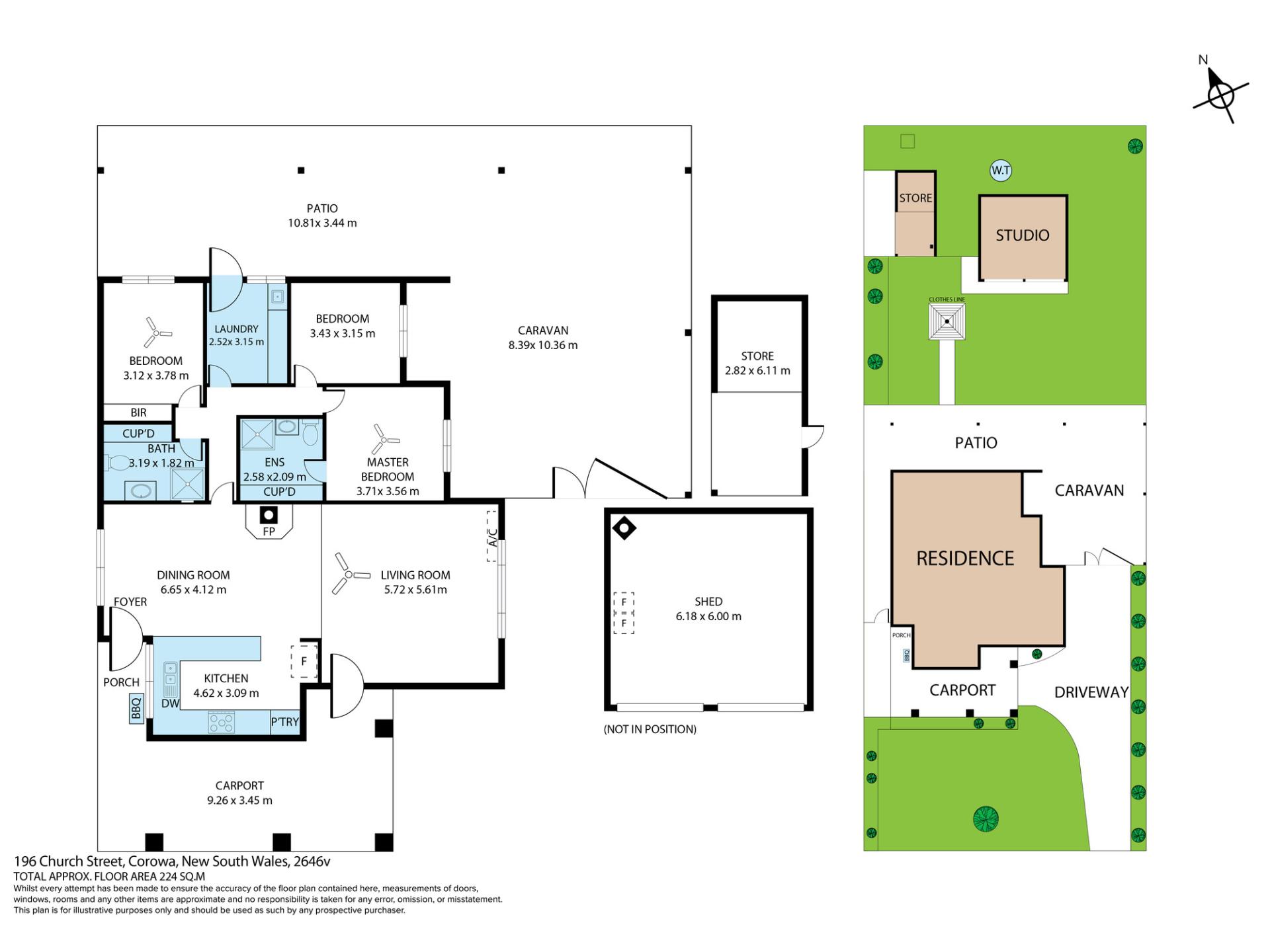
3 2 4 1,012 m2
Address 196 Church Street, Corowa
Price SOLD for $645,000
Property Type Residential
Property ID 1607
Category House
Land Area 1,012 m2

Agent Details

Emma Webb photo

Emma Webb

0488362352
View Profile
Matt Humphreys photo

Matt Humphreys

0438 037 551
View Profile