Just Listed

Commercial investment opportunity in a highly sought location

Presenting to the market 2-6 River Street Corowa, providing an opportunity for commercial investors seeking an investment that provides an immediate return with current tenants in place. Positioned just meters away from Sanger Street whilst being complimented with cafes and eateries close by. 

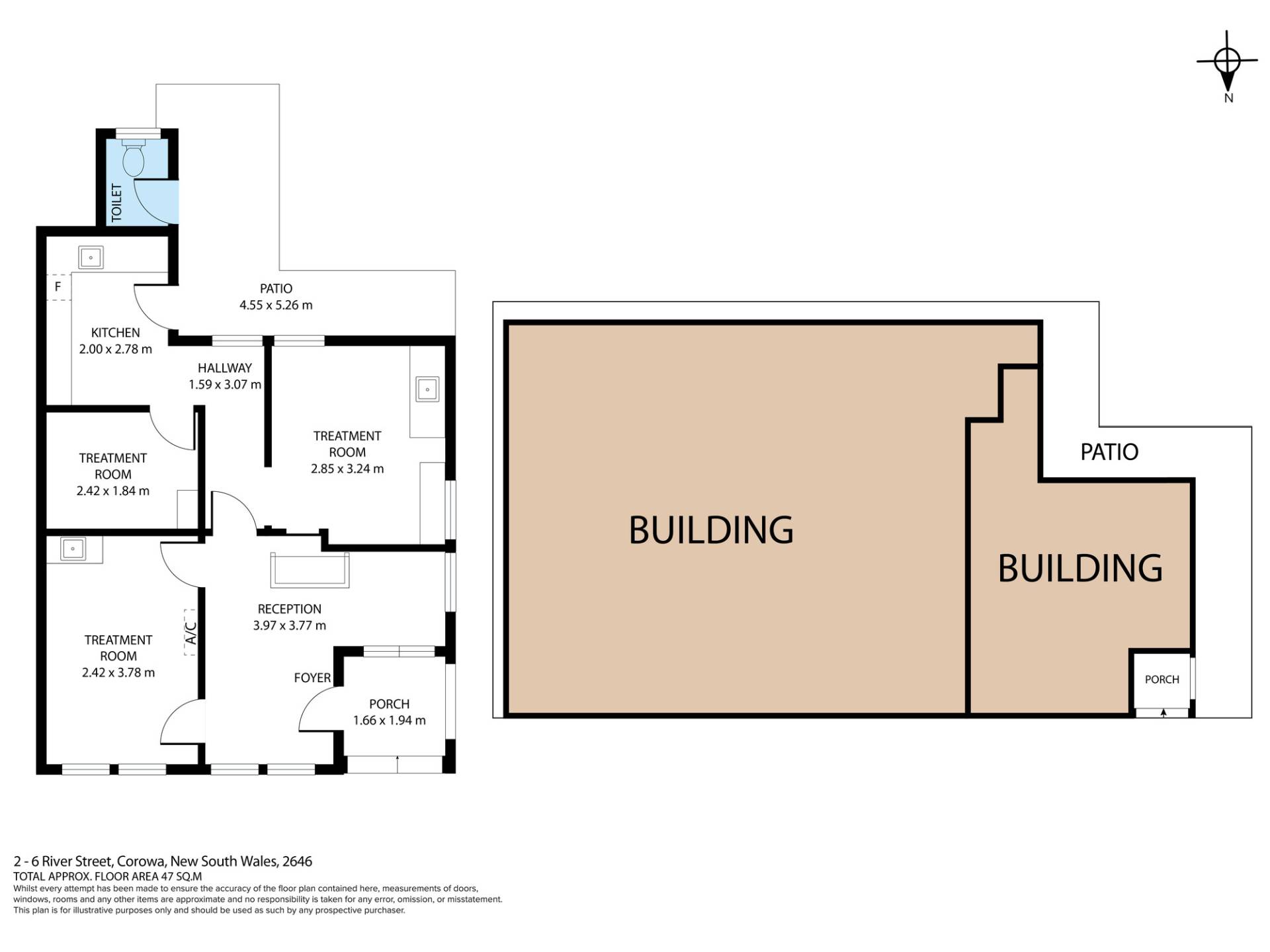
The property is on one lot with two separate frontages, Building one consists of four rooms/office spaces with each room having its own split system heating/cooling, communal waiting room, two storage rooms, kitchenette and toilet whilst building two is currently tenanted and consists of two rooms, kitchen, toilet, storage/third room and reception area. The property has window frontage, additional signage advertisement space on the front external wall, ducted gas heating/evaporative cooling in building one and split system heating/cooling in building two. 

The property currently has three tenancies in place with a yearly return of $24,596 (incl gst) + outgoings with a further two rooms currently available for rent with a potential yearly rent return of $22,880 (incl gst). 

If you have been looking for your next investment opportunity whilst also providing the potential to expand or start your own business ventures then 2-6 River Street Corowa could be for you. For further information, contact Matt Humphreys 0438 037 551 or Emma Webb 0488 362 352. 

6 2 241 m2
Address 2-6 River Street, Corowa
Price $450,000
Property Type Residential
Property ID 1554
Category Other
Land Area 241 m2

Agent Details

Matt Humphreys photo

Matt Humphreys

0438 037 551
View Profile
Emma Webb photo

Emma Webb

0488362352
View Profile