Auburn Lodge - Renovated family home on 14 acres

Proudly presenting 4572 Murray Valley Highway Rutherglen, just three minutes west of the township that is home to award winning eateries, wineries and local amenities. Positioned on a spacious 14 acres spread across four titles that is also complimented with horse stables, round yard and steel cattle yards with ramp & crush. The rural lifestyle you have always wanted is on offer with all the hard work inside/out already done. 

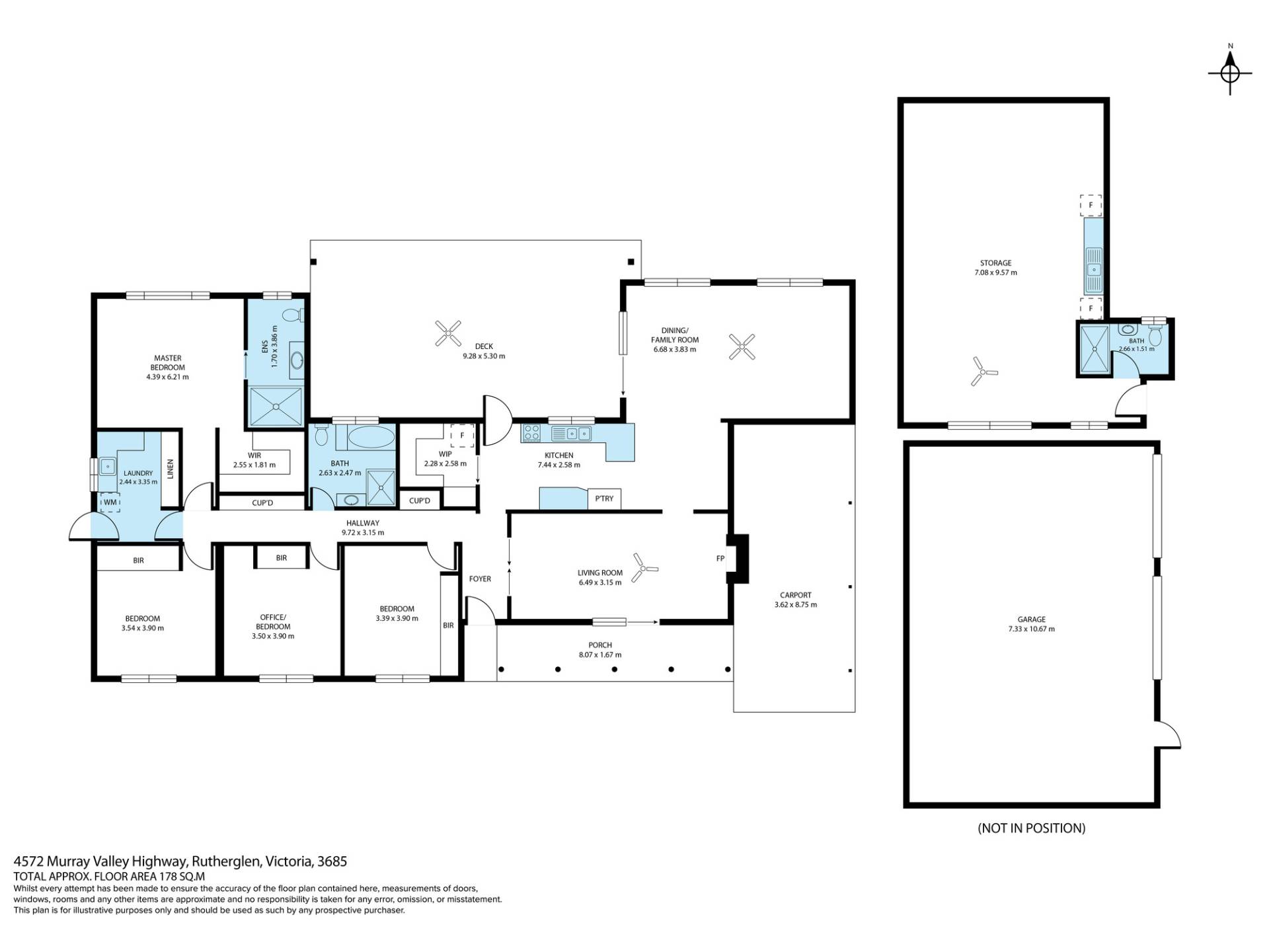
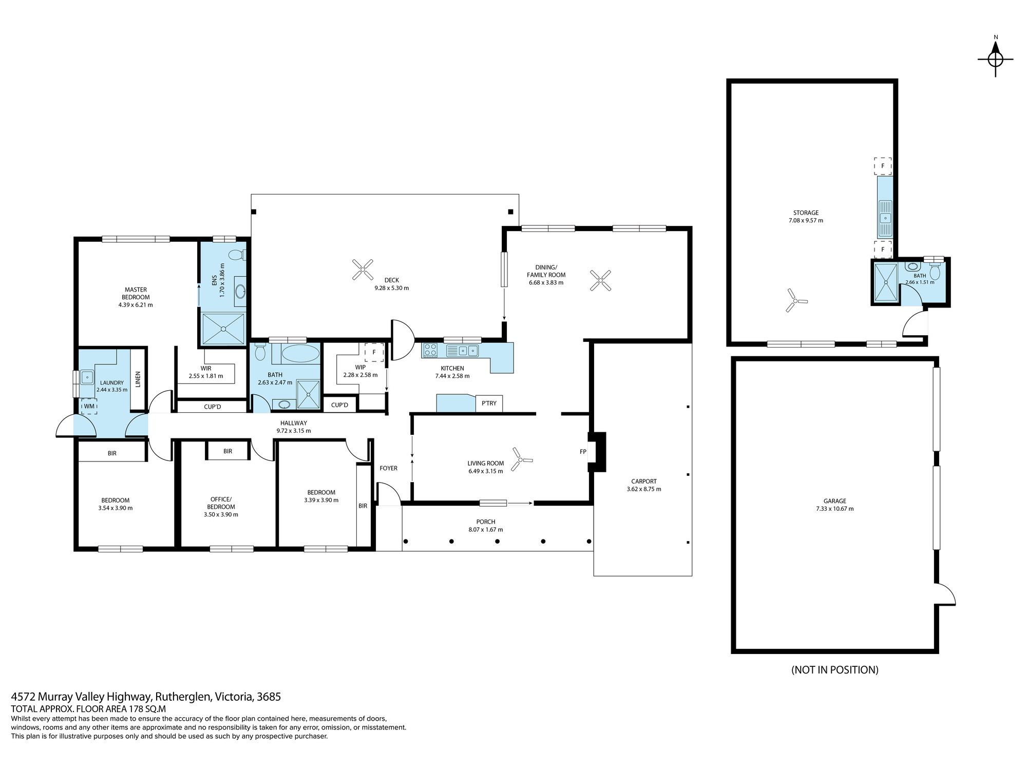
The home consists of four bedrooms, with the master bedroom featuring a walk in robe and renovated ensuite whilst the remaining three bedrooms have built in robe storage. Space for the whole family is sorted, with the home having a formal living at the front that offers a wood heater whilst the second family/dining is conveniently posited within the home and flows through to the outdoor area. The kitchen ensures to impress with its modern colouring, timber benchtops, wine rack, gas cooktop, dishwasher and walk in pantry. 

The renovated family bathroom ensures to accommodate the whole family which has a walk in shower, bath, vanity and toilet with the laundry having cupboard storage and bench spacing. 

Family gatherings outside are made easier with the vast space and thorough detail the alfresco area provides with its pitched ceiling with fan and decked flooring whilst overlooking the backyard that has established gardens, firepit area with seating, fish pond, 7.3m x 10.6m shed with two roller doors and a designated entertaining area in the additional 7m x 9.5m shed that also has a shower, toilet, kitchenette and wood heater. 

The property has five paddocks with stock troughs installed, with additional features including established trees to provide shade for livestock, fruit orchard, single carport, town water, 33,000L rainwater tank water, natural gas, evaporative cooling, ducted floor gas heating, ceiling fans, wireless NBN, double glazing and Murray pine flooring to the homes extension.

Homes of this quality, location and attention to detail are few and far between. Whether you are looking to have space for horses, cattle, sheep or just a property in a country town to call home then 4572 Murray Valley Highway Rutherglen could be the one for you. For further information or to arrange a viewing, contact Matt Humphreys 0438 037 551 or Emma Webb 0488 362 352. 

 

4 3 5 14.00 ac
Address 4572 Murray Valley Highway, Rutherglen
Price $1,075,000
Property Type Residential
Property ID 1548
Category Acreage Semi-rural
Land Area 14.00 ac

Agent Details

Matt Humphreys photo

Matt Humphreys

0438 037 551
View Profile
Emma Webb photo

Emma Webb

0488362352
View Profile